Basics
Description
- Description:
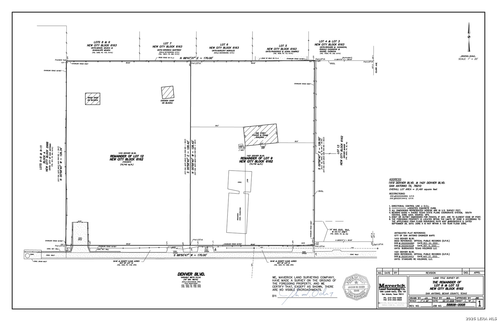
Prime infill opportunity located in the rapidly redeveloping Denver Heights neighborhood, just east of New Braunfels and minutes from downtown San Antonio. Each lot is approximately 0.25 acres (85' x 126.5') and zoned RM-4, while also located within an IDZ (Infill Development Zone) area, while current zoning allows up to 4 units per lot (8 total), the IDZ designation may allow for additional density or more flexible configurations, subject to buyer verification and city approval. Build ready. Certificates of Determination have already been approved. The lots are flat with minimal trees in the buildable area. Offered at $160,000 per lot, equating to$40,000 per unit, making this a compelling opportunity for builders seeking infill projects with strong upside.
Show all description